|
|


|
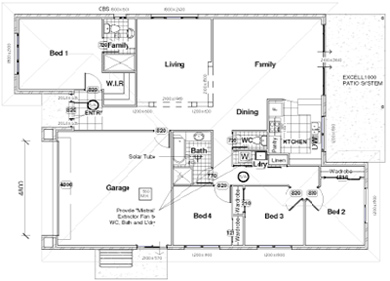
Inclusions :-
• 4 x Bedrooms with Built Ins
• Covered Porch and Tiled
Entrance
• Modern Internal Feature
Wall
• Automatic Double Lock
Up Garage
• Ensuite off Master
Bedroom
• Master Bedroom ( Walk
In Wardrobe )
• Spacious Living Room
leading to an Extensively
Tiled Family Room,
Opening Directly to a
relaxed Alfresco Pergola
Area
• Kitchen with Breakfast Bar
, Pantry and Stainless Steel
Appliances |


|
|
|
|
|